Návrh na prodej pozemků pod Hrabicemi
Ve své rekapitulaci uplynulého týdne a servru Za krásnější Vimperk si pan starosta Dvořák posteskl nad tím, že na jednání zastupitelstva dne 22. 1. 2018 nebyl schválen záměr prodeje pozemků pod Hrabicemi developerovi a že nabídka, kterou označil za výhodnou, byla podrobena bývalou koalicí kritice. Je otázkou, zda-li pan starosta pečlivě zvážil kvalitu předkládaných materiálů.
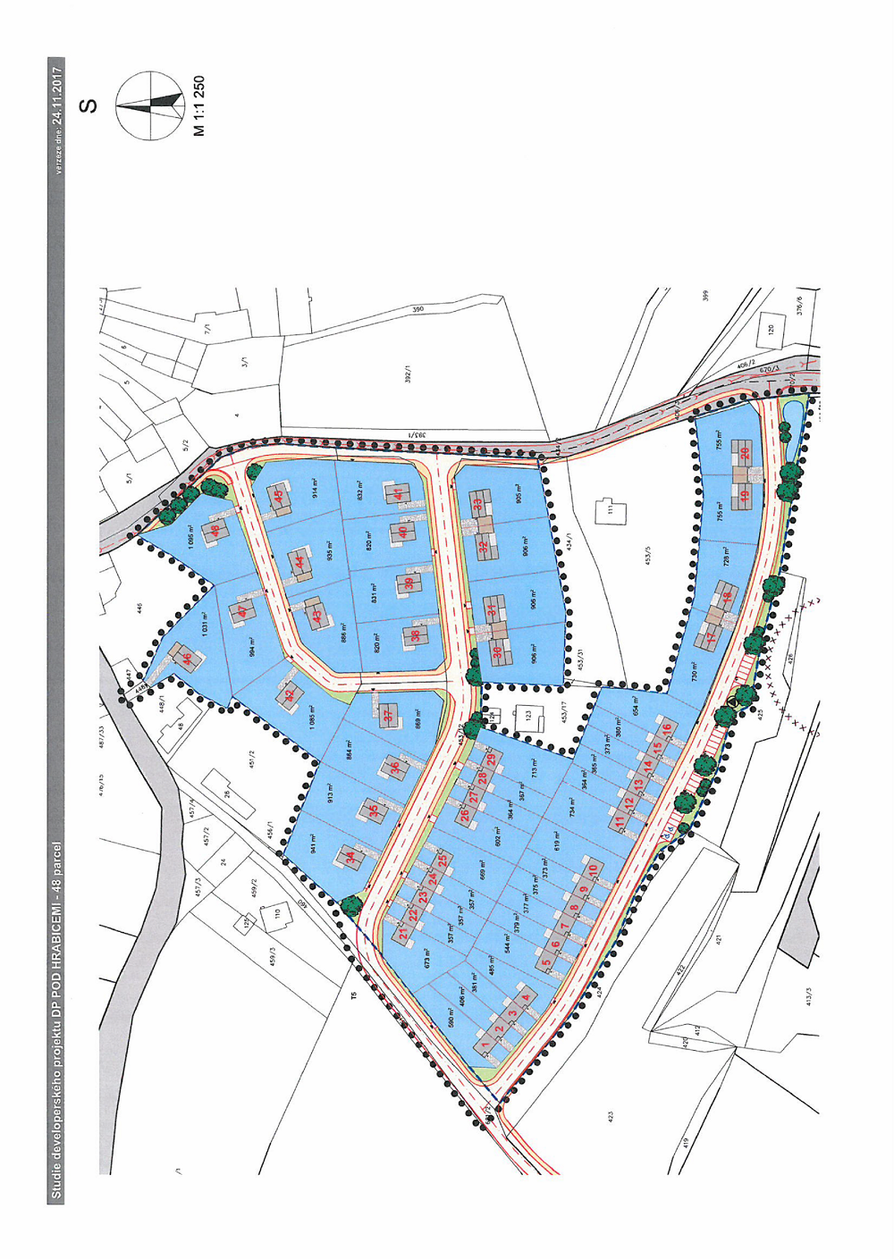
1. Předkládaný záměr je zcela v rozporu s územním plánem a tak jak byl předložen nerealizovatelný, což potvrdil i zástupce odboru výstavby a územního plánování. Developer uvažuje s výstavbou minimálně 46 rodinných domů (23 samostatných a 23 řadových)
2. Velký problém této transakce je i to, že podle návrhu developera by město obdrželo peníze až od finálního kupujícího. Tedy od jednotlivých nových vlastníků pozemků, případně rodinných domů, které nabízí developer postavit. Dřevostavby: řadový dům za 3 mil Kč, samostatný za 4,3 mil. Kč.
3. Přestože nabídky od developera byly adresovány i zastupitelům a dopisy byly odeslány 26. září 2017 a 28. listopadu 2017, zastupitelé s nimi byli seznámeni až na lednovém jednání zastupitelstva.
4. Město Vimperk svým občanům prodává nezasíťované pozemky za cca 300,- Kč/m2 s tím, že si sítě vybudují sami a předají je městu. Zde nabízíme developerovi cenu třikrát nižší ještě s tím, že ji můžeme dostat až od finálního vlastníka.
5. Jako perličku je možno uvést, že developer ve svém návrhu uvažuje i s pozemky, které již město prodalo.
Z výše uvedeného vyplývá, že předložený návrh byl špatný. Celé lokalita je již rozdělena na parcely a současní vlastníci pozemků počítají s roztroušenou zástavbou, která zajišťuje i větší míru soukromí. Jak by jim vedení města zdůvodnilo, že místo rodinného domku budou sousedit s několika řadovými domky?
Pravdu nemá starosta ani v uváděných „minimálně 30 mil. Kč“ na výstavbu ZTV (voda, kanalizace, komunikace atd.). Podle odhadu odboru investic se jedná o cca 20 mil. Kč. Soutěží je možno docílit i nižší ceny.
Zajímavé na tomto případu je i to, že není doložen stanoviskem osadního výboru Hrabice. Zároveň je podporován radní MVDr. Janáskovou, která se tak angažovala při ochraně podmínek bydlení v Hrabicích v případě výstavby biatlonové střelnice. Ta by mimochodem ovlivňovala prostředí v Hrabicích jen minimálně a jen několik dnů v roce, zatímco předkládaný záměr znehodnocuje bydlení trvale. Mlčí i spolek Vimpersko. Proč? Plně souhlasím s panem starostou v tom, že „….Jsou zákony, které nám něco přikazují. Zákon o obcích nám ukládá, že se musí volený zastupitel vždy „chovat s péčí řádného hospodáře“ k majetku a penězům města. Jinak to může být pro nás všechny í soukromoprávní a trestní problém…..“
A právě proto si myslím, že navrhovaný záměr nelze podpořit. Řádný hospodář nevidí jen krátkodobý efekt, ale dívá se i do budoucnosti.
Ing. Bohumil Petrášek
Původní – stále platné rozdělení stavebních pozemků pod Hrabicemi.

Nově navrhované rozdělení stavebních pozemků pod Hrabicemi. V rozporu s územním plánem.

{jcomments off}